Centre de Jour

Dans ce projet fictif, nous devions transformer la bibliothèque du pavillon d’aménagement de l’Université de Montréal en centre de jour pour adultes autistes. Le mandat nous a amenées à entreprendre une recherche approfondie sur l’autisme et sur les principes d’aménagement favorisant le bien-être et l’autonomie des usagers à besoins spécifiques. À travers des analyses de précédents, des schémas, des croquis, la création d’usagers types et l’étude du contexte social et géographique, nous avons cherché à comprendre en profondeur les besoins de cette clientèle.

Nous avons choisi de faire du centre un lieu d’exploration artistique, permettant aux utilisateurs d’expérimenter diverses formes d’expression et de développer leur autonomie à travers la création. Une question directrice a orienté notre démarche : comment l’environnement peut-il encourager les interactions sociales des personnes autistes tout en respectant leur unicité ?

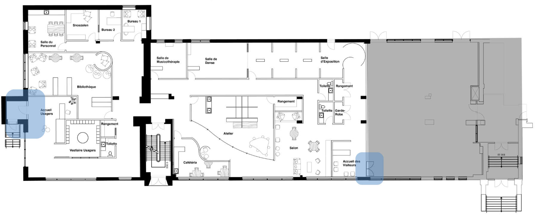
Cette réflexion nous a menées à étudier les modes de participation et l’importance des espaces de transition dans le quotidien des personnes autistes. Le zonage du projet distingue des espaces calmes en périphérie et des zones plus sociales au cœur du centre. Dans chaque atelier, nous avons intégré des sas de transition favorisant un passage progressif d’une activité à l’autre. Ces moments ritualisés — déposer ses chaussures, respirer, enfiler un tablier — marquent symboliquement le début d’une nouvelle activité et permettent une préparation mentale apaisante.

La matérialité s’inspire de la nature et favorise la détente sensorielle, tandis qu’une palette de couleurs différencie les zones : le vert pour les espaces privés, le bleu pour les espaces partagés et les teintes chaudes pour les zones sociales. Cette hiérarchie visuelle aide à orienter les usagers et à offrir différentes modalités de participation — actives, passives ou observantes — selon le confort de chacun.

Ce projet m’a profondément sensibilisée à l’importance de placer l’usager au cœur du design. Comprendre ses besoins, ses limites et ses forces est essentiel pour créer des environnements réellement inclusifs, capables de soutenir l’épanouissement de chaque individu.

Gabrielle Giroux et Laura Khalil.

Explorations conceptuelles: les sas